Here you can configure your Energy Chain System® individually. All entries will be copied to the Bill of Materials shown at the bottom of this page.
Series E4.56AG - Chain, snap open on both sides with crossbars at every link
1. Straight running due to inner/outer link design
2. Low-noise running due to built-in brake
3. The undercut design ensures very high rigidity and load capacity
4. 15% more tensile strength, better unsupported length due to improved system of vertical stop-dogs
5. New opening crossbar available for faster fitting and removal 450.X. Q
6. Wide range of products for interior separation - New interior separation available for faster cable laying T563(A)
7. NC "without camber" possible due to easy turning of the outer link without the need for reworking
8. Crossbars for e-chain® can be removed on both sides
9. Lid for e-tube can be swivelled and removed
10. Wide plastic crossbars – cable-friendly
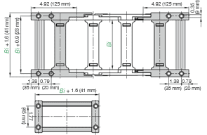
Available inner widths Bi: 50 to 600 mm
Available bending radii R: 135 to 500 mm
Pitch: 91 mm per link = 11 links/m